Our colour appt
It was so so so good to finally put all the hardwork and time spent researching everything for our tender appointment into action. We were done within 2.5 hours and spent 2 hours on the electrical as we had ALOT of requirements lol.
Here is a summary of what we ended up with
Exterior Colours:
Render - Domino and Snow Season
Cladding - Permatimber Sentosa
Front door/frame and feature post - Taman and Translucent Glass
Roof, Fascia, Downpipes - Monument
Interior Colours:
Walls - Highgate
Ceiling - Builders white
Trims & Skirts & Doors - Leixcon Half
Theatre Room Walls & Skirts - Maximus
Stairs - Brown teak (image top middle)
Floors:
Throughout - Trendline Laminate Liverpool Oak (image middle)
Tiles - Belga Charcoal Matte (image right)
and Feature wall in Powder and Master Ensuite - Antique Oak Honey (image top right)
Carpet - Renaissance Grey with Ultimate underlay upgrade
Kitchen & Bathroom Vanities
Black Wenge throughout except island bench and powder room vanity (image middle)
Organic White throughout except island bench and powder room vanity (image middle)
Calcutta Nuvo for powder room vanity and island bench (image middle)
Evolution Createc Gloss Ultra-White for island bench (image middle)
Glass splashback - Vanilla Quake
Tapware upgrades
Nara tapware for powder room and master ensuite (basin and bath spout)
Ceiling shower rose for powder room and master ensuite shower
KDK oval above bench sinks for powde room and master ensuite
Blix flexible hose sink mixer for Kitchen and Butler Pantry
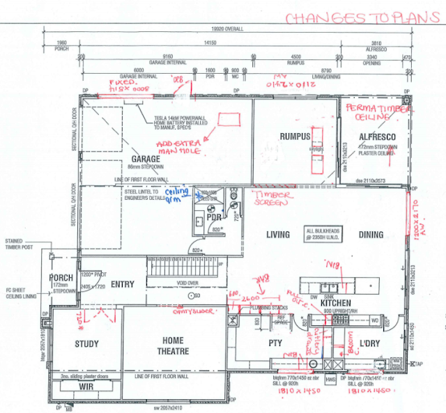
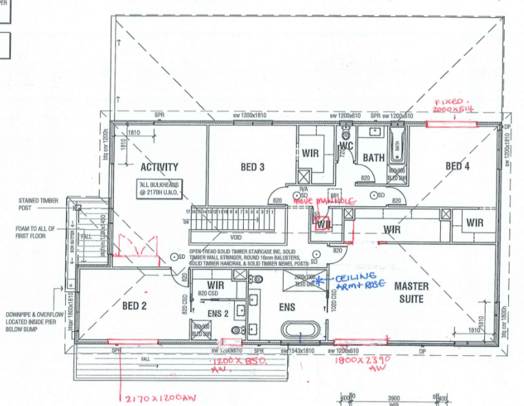
Screenshots of changes to plan
Electrical
As we will have 5 gamer adults who are also musicians, we had to add ALOT of electrical points. Here's a quick squiz. We ended up with 75 batten lights, which we will convert to downlights later.
We are still waiting on a list of about 43 items that we will hopefully get to see the price of in 2 weeks time when we have our tender appointment.







Comments
Post a Comment